ELH-17
Pikkuhuvilat ja saunat
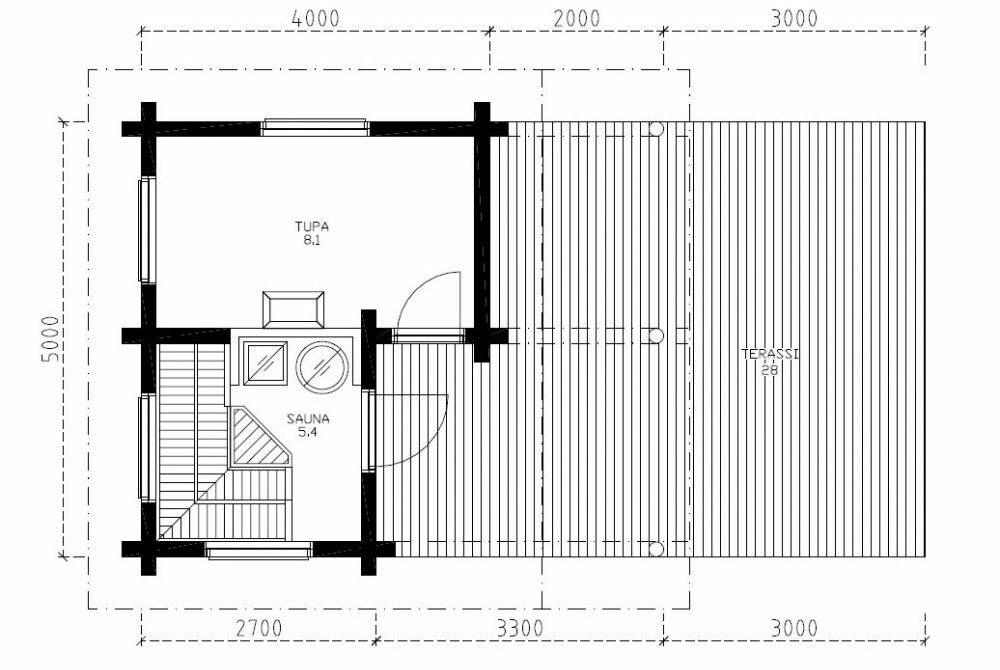
Alakerta
17 m²
Kerrosala yhteensä
17 m²
Terassit / parvekkeet
28 m²
Kokonaisala
45 m²
Kuvia klikkaamalla näet ne suurempana. Täältä löydät esitteemme.
Kiinnostaako tämä malli?
Olisiko tämä malli lähellä sitä oikeaa? Tehdäänkö tähän toivomasi muutokset? Ota yhteyttä Eurohongan asiantuntijoihin ja kerro lisää. Unelmiesi hirsitalo odottaa sinua.
Kun vakioratkaisu ei riitä...
Vai onko tässä mallissa joku yksityiskohta jonka haluaisit osaksi omaa hankettasi? Tai yhdistää tästä jotain johonkin toiseen malliin? Kerro toiveesi niin räätälöidään malli sellaiseksi kuin tarve on.











